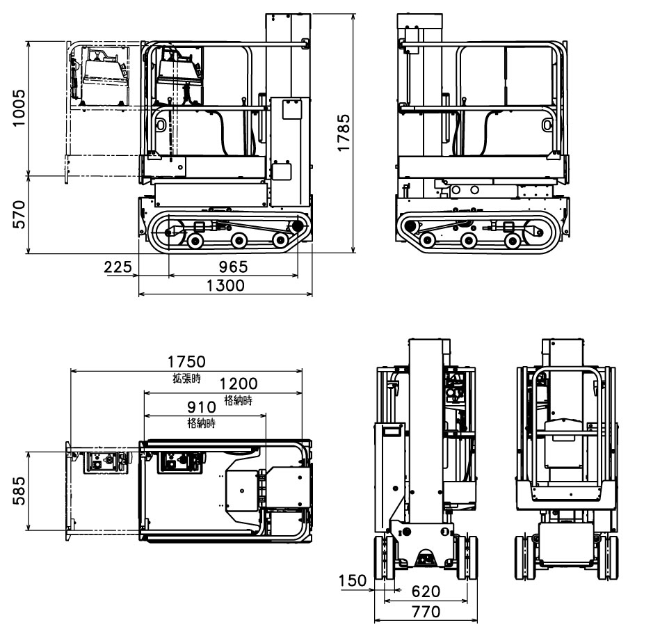
コンパクトな車体で、作業床最大地上高4.80mを実現。
さらに作業床が0.55m拡張するスライド式拡張デッキの採用により、障害物をかわしてのアプローチが可能です。
- TOP
- 製品情報検索
- 高所作業車(自走式)
- スカイタワーWM・RMシリーズ
- スカイタワー RM05C1NS
スカイタワー RM05C1NS
高所作業車(自走式)
バーティカルタイプ
ビル・大型施設建設
造船
製品情報
製品動画紹介
製品について
作業範囲の拡大で効率化をサポート
安全・快適な走行を実現する操舵性
「SV-E」シリーズでご好評の「プロポーショナルステアリング」を採用。操作ダイヤルの回転量で操舵を制御、安全で正確な走行操作に貢献します。
クローラー式の「RM05C1NS」は、操作ダイヤルを最後まで回転させることでその場旋回する「スピンターンモード」へ切り替わり、省スペースでの旋回が可能です。
乗り降りしやすい作業床
マスト式昇降機構の採用による、低い作業床最低地上高(RM05C1NS:0.57m)と、作業床の乗降時に身をかがめる必要がないフルハイト乗降扉の採用により、高い乗降性を実現しました。
メンテナンス作業における手間を軽減
補水不要な「メンテナンスフリーバッテリー」を標準装備。補水に伴う管理コストも削減できます。
また、標準装備とした「マルチファンクションインジケーター」により、車両のバッテリー残量・アワメーターや、制御装置が正常に働いていることなどが確認できます。
安全情報
安全に関するご注意
- 高所作業車の運転(高所作業)には以下の資格が必要です。
・作業床の最大高さが2m以上10m未満のものは、高所作業車運転のための「特別教育修了者」または「技能講習修了者」。
・作業床の最大高さが10m以上のものは、高所作業車運転のための「技能講習修了者」。 - 本機は屋内専用機です。屋外で使用しないでください。
- 屋内であっても、強風や突風の当たる場所で本機を操作しないでください。
- 作業床をシートで覆うなど、本機の風に当たる面積を増やすような行為はお止めください。本機の安定性が減少し、転倒する危険性が増加します。
- ご使用の前に「取扱説明書」をよくお読みのうえ、正しくご使用ください。
PDF形式のファイルの閲覧には、Adobe Acrobat Readerが必要となります。






